본문 바로가기 대메뉴 바로가기

충북 아키비움 근원을 기록하다

아키비움 검색
영동 가학루
시도지정 > 충북 유형문화유산 영동 가학루
  • 한자명永同 駕鶴樓
  • 영문명Gahangnu Pavilion in Yeongdong
  • 지정일/등록일1976-12-20
  • 관할시군영동군
  • 이칭/별칭유형 22

문화재 설명정보

영동 가학루는 충청북도 영동군 황간면 남성리 황간향교 옆에 있는 조선시대의 누각이다.
영동 가학루는 황간향교 앞 남동쪽에 자리하여 주위에는 대나무숲이 우거져 있고, 멀리 산과 굽이치는 물길의 경관을 내려다보며 풍류를 즐기고 다양한 활동을 담던 곳이다.
1393년(태조 2)에 황간현감 하첨(河詹)이 건립하였고, 후에 경상도관찰사 남재(南在)가 학이 바람을 타고 떠다니는 것과 같다고 하여 가학루(駕鶴樓)라 하였다고 전한다. 임진왜란으로 소실된 것을 광해군 때 현감 손번(孫蕃)과 구장원(具長源)이 중건하였고, 이후 1716년(숙종 42) 현감 황도(黃鍍)의 기와 보수, 정조 때 현감 이운영(李運永)의 중수, 1930년에 김석영(金錫泳) 군수가 다시 중수하였다. 한국전쟁 후에는 황간초등학교가 불타자 한때 학교 건물로 사용하기도 하였다.
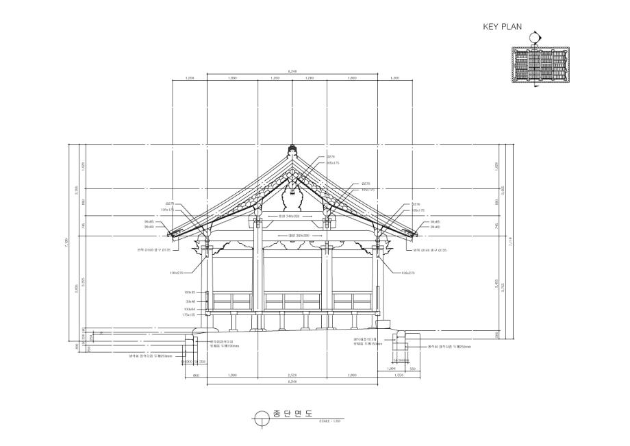
영동 가학루는 정면 4칸, 측면의 남서쪽은 2칸, 동북쪽은 3칸 규모의 목조기와집이다. 구조는 지형을 그대로 살린 상태에서 자연석 기단 위에 자연석 초석을 놓고 그 위에 두리기둥을 세우고 있다. 기둥에 적정한 높이의 마루를 꾸미고 마루 주위에는 평난간을 두르고 있다. 공포는 기둥 위에는 익공 쇠서가 2개인 이익공 형식이나 쇠서가 짧고 공포부가 약화되어 건물 규모에 장중한 느낌을 약화시키고 있다. 기둥 머리를 결구한 창방 위에는 화반을 놓아 장여를 받는 일반적인 누각의 기법을 보이고 있다. 양 측면 협칸에는 남서쪽에 1개, 동북쪽에 2개의 충량을 설치하고 있다. 가구형식은 1고주5량가이고, 지붕은 홑처마 팔작지붕이다.
영동 가학루는 일반적인 누각의 형식을 띠고 있지만 황간향교 앞의 빼어난 경관에 세워진 누각으로 지역적인 특성을 잘 보여주고 있다.
Gahangnu Pavilion, which stands beside the Hwangganhyanggyo Local Confucian School in Namseong-ri, Hwanggan-myeon, Yeongdong-gun, is known to have been built in 1393 (the 2nd year of the reign of King Taejo of Joseon) by Ha Cheom, then serving as the administrative chief of Hwanggan-hyeon. The original building was destroyed by fire during the Imjin waeran (1592-1598), the seven-year war between Korea and Japan that started with the Japanese invasion of the Korean Peninsula in 1592, and was rebuilt in the early seventeenth century by then prefectural administrators Son Beon and Gu Jang-won. The name “Gahangnu” (literally “pavilion of crane riding the wind”) was given by Nam Jae, the then governor of Gyeongsang-do. Located southeast of the Hwangganhyanggyo Local Confucian School and surrounded by a bamboo grove, the pavilion commands wonderful panoramic views of distant mountains and rivers, which made it an attractive getaway for members of the local elite seeking rest and relaxation. The pavilion is a wooden structure measuring four-kan* at the front, two-kan on the southwestern side, and three-kan on the northeastern side.
*kan: a unit of measurement referring to the distance between two columns
永同駕鶴楼は、永同郡黄澗面南城里の黄澗郷校の隣にある朝鮮時代の楼閣で、1393年(太祖2)に黄澗県監の河詹(ハ・チョム)によって創建されてとされ、文禄・慶長の役で焼失したものを、光海君時代に県監の孫蕃(ソン・ボン)と具長源(ク・ジャンウォン)によって再建されたものである。慶尚道観察使の南在(ナム・ジェ)が、まるで鶴が風に乗って舞っているように見えるとして「駕鶴楼」と名付けたと言われている。永同駕鶴楼は、黄澗郷校の南東側に位置しており、周囲には竹林が広がっている。遠くの山とくねくねと流れる川の景観を眺めながら風流を楽しみ、さまざまな活動に興じていた場所である。永同駕鶴楼は、正面4間、側面は南西側2間、北東側3間の木造瓦屋である。

문화유산 상세정보

제 0022 호
유형 22
유적건조물 > 주거생활 > 조경건축 > 누정
주생활 > 건축물 > 정자건축
조선시대
영동군
1976-12-20
-
건조물>목조건축물류/누정
-
목재
이익공/팔작지붕
가구식구조(1고주5량가), 목구조
정면4칸, 남서쪽 2칸, 동북쪽 3칸
1동
408.0
대표 소재지 공개
29115충청북도 영동군 황간면 구교리길 94
충청북도 영동군 황간면 남성리 140
대표 보관장소 공개
충청북도 영동군 황간면 남성리 140

소유 관리 점유 정보

참고문헌

충북문화유산지킴이, 2014, 『충북문화재 모니터링 점검보고서 下』. [아카이브 > 학술자료 수록]

충북문화재돌봄사업단, 2015, 『충청북도 문화재돌봄사업 결과보고서Ⅰ』. [아카이브 > 학술자료 수록]

충북문화재돌봄사업단, 2015, 『충청북도 문화재돌봄사업 결과보고서Ⅱ』. [아카이브 > 학술자료 수록]

충북문화재돌봄사업단, 2016, 『충청북도 문화재 돌봄사업 결과보고서』. [아카이브 > 학술자료 수록]

충북문화재돌봄사업단, 2016, 『충청북도 문화재 돌봄사업 전문모니터링 결과보고서』. [아카이브 > 학술자료 수록]

충북문화재돌봄사업단, 2017, 『충청북도 문화재 돌봄사업 결과보고서』. [아카이브 > 학술자료 수록]

충북문화재돌봄사업단, 2018, 『충청북도 문화재 돌봄사업 활동보고서』. [아카이브 > 학술자료 수록]

충북문화재돌봄사업단, 2019, 『충청북도 문화재 돌봄사업 활동보고서』. [아카이브 > 학술자료 수록]

충북문화재돌봄사업단, 2020, 『충청북도 문화재 돌봄사업 활동보고서』. [아카이브 > 학술자료 수록]

충북문화재돌봄센터, 2023, 『충청북도문화재돌봄센터 결과보고서』. [아카이브 > 학술자료 수록]

이미지

동영상

  • 자료가 없습니다.

음원

  • 자료가 없습니다.

문서

  • 자료가 없습니다.

3D

  • 자료가 없습니다.