본문 바로가기 대메뉴 바로가기

충북 아키비움 근원을 기록하다

아키비움 검색
충주향교
시도지정 > 충북 유형문화유산 충주향교
  • 한자명忠州鄕校
  • 영문명Chungjuhyanggyo Local Confucian School
  • 지정일/등록일1980-01-09
  • 관할시군충주시
  • 이칭/별칭유형 57

문화재 설명정보

충주향교는 1398년(태조 7)에 창건되어 계명산(鷄鳴山) 아래에 초창하였으나, 임진왜란 때 소실되었다. 이후 1629년(인조 7)에 지금의 위치로 이건 되었다. 그 후 병화로 다시 불에 타 1897년(광무 1)에 중건되었다.
배산임수(背山臨水)의 지형에 남향한 향교는 홍살문을 지나 외삼문을 들어서면 정면으로 명륜당이 위치하고, 후면 중앙에 계단을 오르면 내삼문, 동·서무와 대성전이 위치하고 있다.
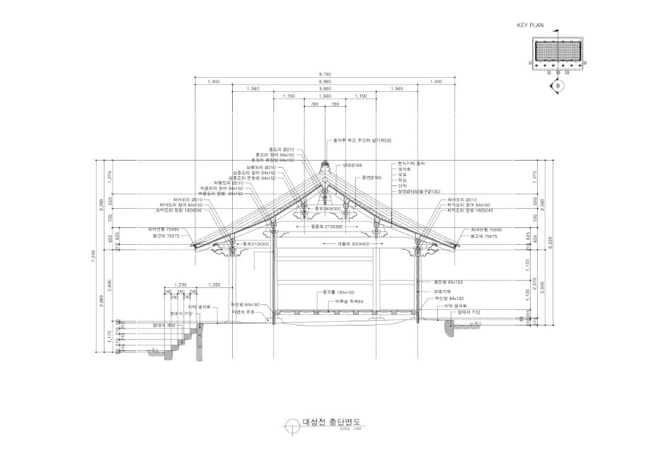
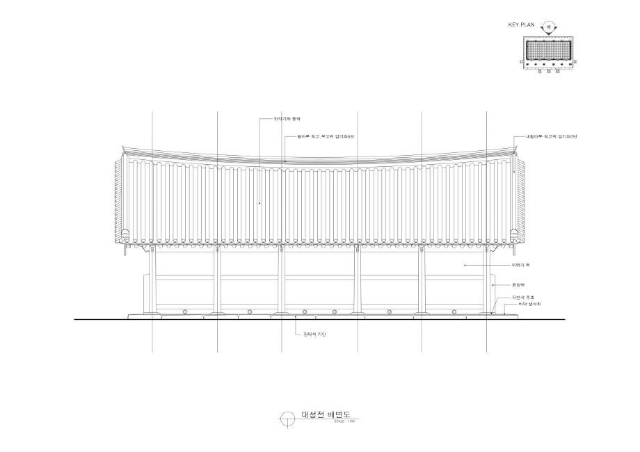
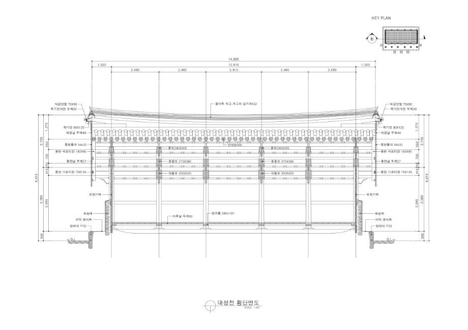
대성전은 정면 5칸, 측면 3칸으로 전면에 퇴를 둔 맞배집이다. 육중한 장대석으로 기단을 높게 설치하였다. 평평한 자연초석 위에 그랭이질 하여 민흘림의 두리기둥을 세웠다. 기둥 위에 주두를 놓고 초익공은 앙서 형태로 깎아 퇴량머리를 수서형태로 하였다. 창방과 주심도리 사이에는 소로로 수장되어 있다. 가구는 전면 고주의 주신과 정면 평주 사이에는 퇴량으로 연결된 1고주7량가이다. 이 고주와 배면 평주 사이의 칸에는 대량을 길게 연결하고 그 위에 중량과 종량을 짜올려 3중의 보 가구를 이루고 있다. 종도리와 상중도리 밑에는 횡 방향으로 뜬창방을 걸고 소로를 배치하여 장여와 도리를 받치고 있다.
명륜당은 정면 5칸, 측면 2칸 규모로 중앙 3칸은 대청이며 양단 칸에는 온돌방을 두었다. 대청 후면에는 쌍여닫이 판장문을 달았고 온돌방은 쌍여닫이 띠살문을 달았다. 3단의 가공된 장대석 기단 위에 원뿔형 주초석을 놓고 그 위에 두리기둥을 세웠다. 이익공 계통의 공포는 앙서형으로, 돌출된 익공의 선단(先端)에는 화려한 연봉이 조각되었다. 건물 내부 좌우면에는 초각을 한 보아지가 돌출되어 대량을 받치고 있다. 또한, 창방으로 결구되어 있는 주간에는 초각한 화반을 각 칸에 1구씩 배치하여 주심도리 장혀을 받쳐 주고 있다. 가구형식은 전후 평주 위에 대량을 걸치고 동자주를 세워 종량을 결구하였다. 종량 상부 중앙부분에 제형대공을 설치하여 옥개부분의 하중을 받쳐주고 있는 5량가, 겹처마 팔작지붕을 이루고 있다.
동·서무는 정면 7칸, 측면 1칸의 평면에 덤벙주초를 놓고 네모기둥을 세운 3량가, 홑처마 맞배지붕을 이루고 있다.
이 향교는 군현을 정비하면서 선현을 배향하고 지역민을 교화하기 위해 설립되었으며 남향한 넓은 터에 비교적 큰 규모와 격식을 갖추고 있다. 현재도 명륜학원을 운영하여 한문, 서예, 경서를 지도하고 있으며 봄과 가을에 석전(釋奠)을 봉행하고 있다.
Chungjuhyanggyo was a state-run Confucian school that also served as a shrine for the holding of sacrificial rites to Confucian saints. It was originally built in 1398 (the 7th year of the reign of King Taejo of Joseon) at the foot of Gyemyeongsan Mountain, but was destroyed by fire during the Japanese invasion of 1592. A new school was built in 1629 (the 7th year of the reign of King Injo of Joseon) at the current location, but this too was destroyed by fire and rebuilt in 1897.
The building is located on a large south-facing site according to formalities. It is still used to teach the Chinese classics, calligraphy, and Confucian philosophy. People hold a sacrificial rite for Confucius here twice a year.
忠州郷校は、1398年(朝鮮・太祖7)に創建され、鶏鳴山の下に位置していたが、文禄・慶長の役で焼失し、1629年(仁祖7)に現在の場所に移築された。その後、兵火で再び焼失し、1897年(光武1)に再建されている。
この郷校は、郡県を整備する過程で、先賢を祀り、地域住民を教化することを目的として設立された。南向きの広い敷地に建てられた比較的大規模な郷校で、格式の高さを感じさせている。現在でも明倫学園が運営されており、漢文、書道、経書の指導が行われているほか、春秋に釈奠が行われている。

문화유산 상세정보

제 0057 호
유형 57
유적건조물 > 교육문화 > 교육기관 > 향교
주생활 > 건축물 > 향교건축
조선시대
충주시
1980-01-09
-
건조물>목조건축물류/향교
-
목재
맞배지붕, 팔작지붕
전학후묘(前學後廟) 배치, 공간구조(명륜당, 대성전, 동무, 서무)
대성전(5X3), 명륜당(5X2), 동서무(7X1)
6동
5,263.0
대표 소재지 공개
27384충청북도 충주시 교동8길 3(교현동)
충청북도 충주시 교현동 196-4
대표 보관장소 공개
27384충청북도 충주시 교동8길 3(교현동)
충청북도 충주시 교현동 196-4

소유 관리 점유 정보

참고문헌

국립문화재연구소, 2013, 『향교석전 공주향교·충주향교』. [아카이브 > 학술자료 수록]

충주향교, 2017, 『충주향교지』. [아카이브 > 학술자료 수록]

이미지

음원

  • 자료가 없습니다.

문서

  • 자료가 없습니다.

3D

  • 자료가 없습니다.