본문 바로가기 대메뉴 바로가기

충북 아키비움 근원을 기록하다

아키비움 검색
증평 연병호 생가
시도지정 > 충북 기념물 증평 연병호 생가
  • 한자명曾坪 延秉昊 生家
  • 영문명Birthplace of Yeon Byeong-ho, Jeungpyeong
  • 지정일/등록일2002-01-11
  • 관할시군증평군
  • 이칭/별칭기념 122, 원명 연병호 생가, 圓明 延秉昊 生家

문화재 설명정보

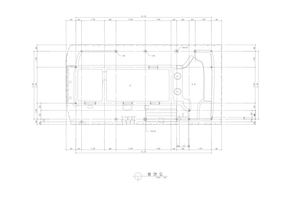
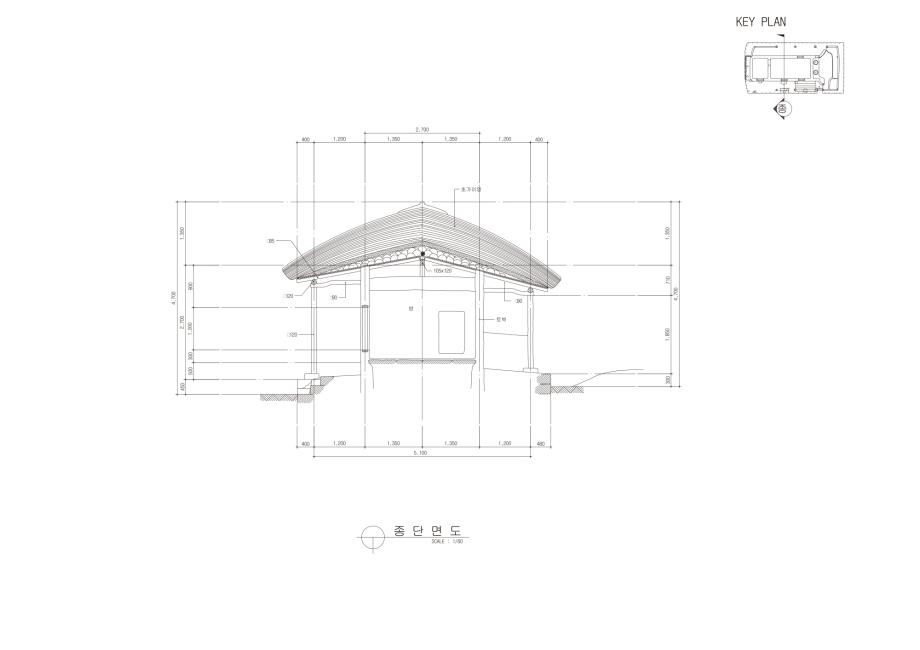
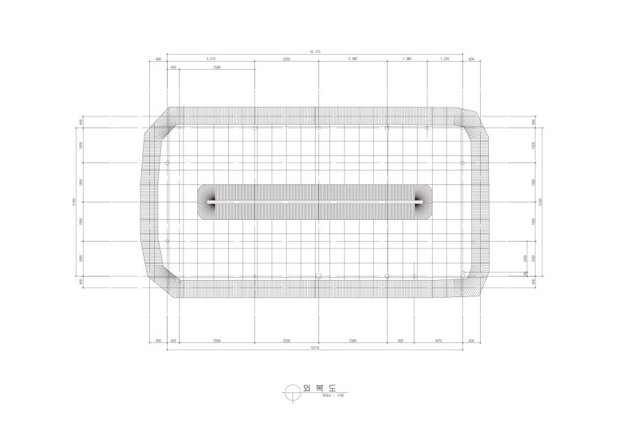
증평 연병호 생가는 연병호(延秉昊, 1894〜1963)의 부친인 연채우(延采羽)의 집으로, 독립애국지사 연병호가 출생 후 성장하고 서거한 집이다. 정면 3칸, 측면 3칸의 토벽 초가집으로 곡산연씨 종중이 관리하고 있어 상태가 양호하다.
연병호는 1894년에 증평군 도안면 석곡리(당시 괴산군)에서 출생하였고, 1919년 중국으로 망명하여 길림성 북로군정서 참모겸 서기로서 국권회복 운동을 하였다. 또한 상해 임시정부 활동을 지원하였으며, 청년외교단 비밀조직 활동으로 검거 투옥되었다. 이후 다시 망명하여 독립혁명당을 조직하였으며, 1937년 임시정부에서 활약 중 일본 관헌에 체포되어 징역 8년을 선고받고 옥고를 치렀다. 1945년 제헌국회의원에 당선되었으며, 1948년 재당선 되었다.
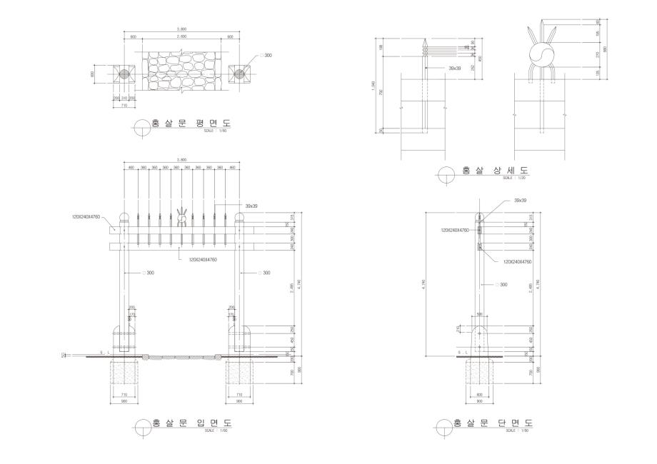
연병호 생가는 초가의 원형을 유지하고 있으며, 주변을 담장으로 두르고 있다. 또한, 당초 있었던 연자방아의 유물이 남아 있다. 1986년에 지붕 등이 변형된 것을 옛 모습 그대로 복원하였으며, 1996년에는 생가보수와 함께 뒤편에 33㎡ 규모의 영당을 신축하고, 생가 주변 담장 40m와 진입로 90m를 정비하여 포장하였다. 1998년에는 사립문과 담장 14m를 정비하고 정비 진입로 134m를 포장하여 보수정비사업을 시행하였다.
독립애국지사의 생가로서 도내에는 원형 그대로 보존된 극히 적은 사례이며, 19세기 농촌의 민가 양식을 볼 수 있는 초가 3칸의 건물로서 민속적인 가치도 지니고 있다.
This house was built by Yeon Chae-u, and his son Byeong-ho (1894~1963; pen-name: Wonmyeong) was born and grew up here. It is a thatched house built of earthen walls measuring 3 kan* by 3 kan. The descendants of Goksan Yeon clan take care of it. The shrine located next to the fence was built here at a later date. A monument commemorating Yeon Byeong-ho’s role as an independent activist was also erected at the site, and an olden-day millstone worked by horse/ox is located nearby.
(*kan: a unit of measurement referring to the distance between two columns)

문화유산 상세정보

제 0122 호
기념 122, 원명 연병호 생가, 圓明 延秉昊 生家
유적건조물 > 인물사건 > 인물기념 > 탄생지
주생활 > 건축물 > 일반건축
조선시대
증평군
2002-01-11
-
교육ㆍ사회사업에 관한 유적>생가
-
목재
초가지붕, 토담집
목구조
정면3칸, 측면3칸
1동
1,097.0
대표 소재지 공개
27904충청북도 증평군 도안면 산정길 21
충청북도 증평군 도안면 석곡리 555
대표 보관장소 공개
27904충청북도 증평군 도안면 산정길 21(석곡리)
충청북도 증평군 도안면 석곡리 555

소유 관리 점유 정보

참고문헌

현석건축사사무소, 2003, 『연병호 선생 생가 종합정비 기본계획』. [아카이브 > 학술자료 수록]

충북문화유산지킴이, 2014, 『충북문화재 모니터링 점검보고서 下』. [아카이브 > 학술자료 수록]

충북문화재돌봄사업단, 2015, 『충청북도 문화재돌봄사업 결과보고서Ⅰ』. [아카이브 > 학술자료 수록]

충북문화재돌봄사업단, 2015, 『충청북도 문화재돌봄사업 결과보고서Ⅱ』. [아카이브 > 학술자료 수록]

충북문화재돌봄사업단, 2016, 『충청북도 문화재 돌봄사업 결과보고서』. [아카이브 > 학술자료 수록]

충북문화재돌봄사업단, 2017, 『충청북도 문화재 돌봄사업 결과보고서』. [아카이브 > 학술자료 수록]

충북문화재돌봄사업단, 2018, 『충청북도 문화재 돌봄사업 활동보고서』. [아카이브 > 학술자료 수록]

충북문화재돌봄사업단, 2019, 『충청북도 문화재 돌봄사업 활동보고서』. [아카이브 > 학술자료 수록]

충북문화재돌봄사업단, 2020, 『충청북도 문화재 돌봄사업 활동보고서』. [아카이브 > 학술자료 수록]

이미지

동영상

  • 자료가 없습니다.

음원

  • 자료가 없습니다.

문서

  • 자료가 없습니다.

3D

  • 자료가 없습니다.