본문 바로가기 대메뉴 바로가기

충북 아키비움 근원을 기록하다

아키비움 검색
옥천 육영수 생가
시도지정 > 충북 기념물 옥천 육영수 생가
  • 한자명沃川 陸英修 生家
  • 영문명Birthplace of Yuk Young-soo in Okcheon
  • 지정일/등록일2002-04-26
  • 관할시군옥천군
  • 이칭/별칭기념 123, 육영수 생가지, 陸英修 生家址

문화재 설명정보

옥천 육영수 생가는 고(故) 육영수 여사가 태어나 어린 시절을 보냈던 생가이다.
옥천의 진산인 마성산에서 산세가 남으로 뻗어 내려오며 이어지는 정기가 모인 명당이라 전하고 있다. 1600년대부터 김정승, 송정승, 민정승이 기거했다하여 ‘삼정승집’이라고 전해 내려오고 있다. 1920년 육여사의 아버지가 민정승의 자손 민대감에게 매입·개축한 이후 방치되다가 고증을 거쳐 2004년부터 4차에 걸친 복원공사를 통해 현재에 이르고 있다.
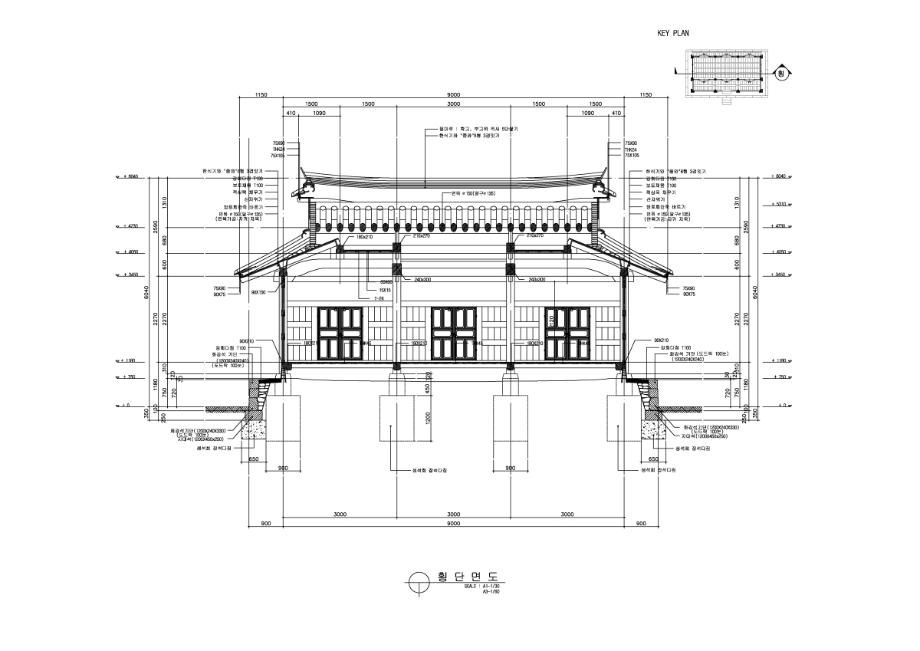
생가는 전체 대지의 앞쪽에 위치하고 있다. 대문을 들어서면 넓은 사랑마당을 두고 가운데에 큰집이 위치하며 오른쪽 모서리에 연못과 그 뒤에 별당인 연당사랑, 목욕탕과 동네사랑, 창고 등 다양한 부속채가 배치되어 있다. 큰집을 중심으로 전면의 왼쪽에는 아랫집이 있고 뒤쪽의 오른쪽에는 윗집이 있다. 형태적으로는 튼ㅁ자형인 3개의 건물군과 차고, 방앗간과 큰 규모의 곳간이 부속된 대문간채와 집합되어 거대한 장원을 이루고 있다.
큰집은 안채와 사랑채 그리고 부속채로 구성된 튼ㅁ자형이다. 사랑채의 왼쪽 뒤로 목욕탕과 중문간, 동네사랑, 창고가 부속된 중문간채의 중문을 들어서면 사랑뒷마당이 있어 매개공간을 이루고 있다. 대문을 들어서면 안마당과 안채가 전개되고 안채 뒤 언덕에는 사당채가 자리하고 있다.
큰집의 안채는 정면 4칸 규모의 ㄷ자형 평면이다. 몸채는 안방, 웃방, 2칸의 안대청으로 구성되며 대청의 동쪽 날개채는 북쪽부터 금고로 사용하던 창고, 웃방, 통로방, 안사랑, 부엌이 있고 서쪽 날개채는 북쪽부터 3칸 부엌, 통로, 2칸의 뜰아랫방으로 구성되어 있다. 창고와 안사랑채의 사이의 툇마루와 연결되는 통로방은 몸채와 날개채를 구분하는 전이공간을 구성하여 조선 후기 반가의 전형적인 공간구성 양식을 보이고 있다. 안방은 田자형이며 안방, 웃방, 침방, 골방으로 구성되어 있다. 안방에 부속된 작은 골방이 육영수여사가 출가하기 전까지 사용하던 방이라고 한다. 몸채와 날개채를 구분하는 통로공간을 통해 외부로 나가면 쪽마루를 통해 연당사랑 쪽에 위치한 독립된 화장실로 연결되며, 몸채의 지붕이 연결되지 않는 곳은 별도의 지붕을 가설하여 비를 맞지 않도록 배려하였다.
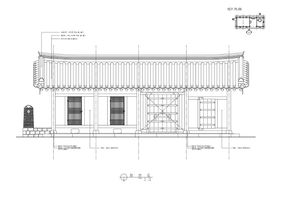
사랑채는 동쪽부터 사랑대청, 큰 사랑방, 작은 사랑방과 뒤로 전화방과 암실이 있고, 꺾어져서 一자형으로 마루방, 전화방, 창고, 솜틀기계를 놓던 창고로 구성되어 있다. 사랑방 앞에는 전퇴를 구성하고, 뒷면에는 쪽마루를 설치하고 있다.
사랑대청의 뒤쪽에는 동쪽에 직교하여 남쪽부터 욕실, 중문, 동네사랑, 도장 등이 부속된 행랑채가 있다.
행랑채에 면해서 담장을 설치하여 안 사랑채와 분리되고, 안채로 진입하기 위한 두 번째 문이 된다.
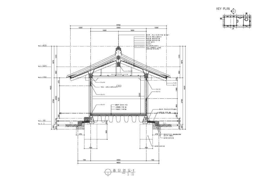
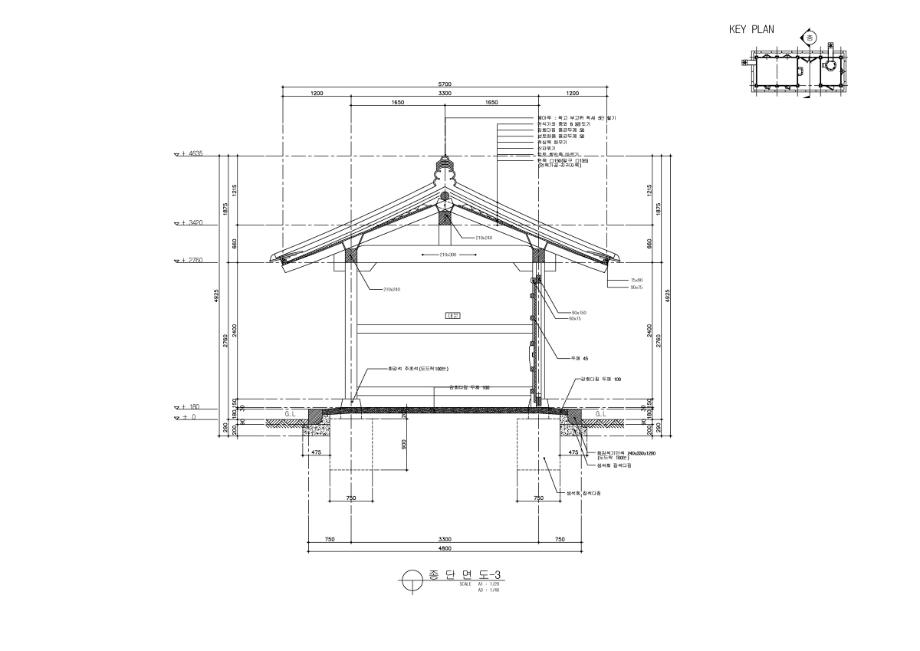
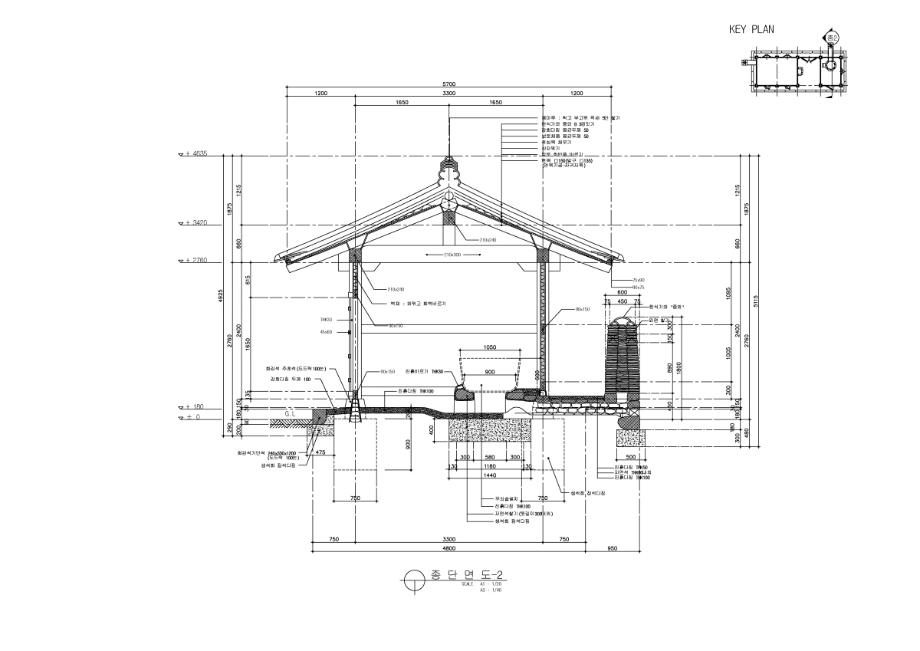
사당은 정면 3칸, 측면 1칸 반 규모의 一자형 목조기와집이다. 전퇴를 두고 있고 내부는 마루가 깔려 있다. 기단부에는 붉은 벽돌을 쌓아 올렸고, 기와는 푸른색의 기와를 올렸다. 지붕은 겹처마 팔작지붕이다.
연당사랑은 연못의 뒤에 배치되어 연못을 바라보며 풍류를 즐기기 위한 공간이다. 정면 3칸, 측면 1칸 반 규모의 一자형 목조기와집이다. 전퇴를 설치하고 있고, 내부는 우물마루로 되어있다.
아랫집은 가옥의 왼쪽에 자리하며 대문간채에는 차고와 대문간, 창고 및 행랑과 화장실이 부속되어 있다. 뒤로는 창고가 연속되어 1m 정도의 석축을 쌓아 높이차를 극복하고 큰집과의 영역을 구분하고 있다. 안마당을 중심으로 후면에 ㄱ자형의 안채가 자리하고 있고, 안마당에는 우물이 있다.
윗집은 전체 가옥의 오른쪽에 자리하며 출입문은 우측담장 중간쯤에 위치하고 있다. 부속된 행랑 및 침모방을 지나 안마당으로 들어갈 수 있다. 역시 두 개의 대문을 통과하고, 우회하여 안마당을 진입할 수 있는 폐쇄적인 공간구성이다.
옥천 육영수생가는 고 육영수 여사가 태어나 어린 시절을 보낸 곳으로, 튼ㅁ자형인 3개의 건물군이 집합되어 형성된 조선후기 상류주거건축의 양식을 보여주는 귀중한 자료이다.
This is the house where Yuk Young-soo, the wife of Park Chung-hee, the ROK’s president from 1963 to 1979, was born and spent her childhood. The house has also been referred to as Samjeongseungjip, or “the House of the Three Premiers,” since the 1600s because three jeongseung (prime ministers) of Joseon, Kim, Song and Min, inhabited this house at one time or another. The house lay in a ruined state for some years until it was sold in 1920 by a descendant of the Min family to Yuk’s father, who renovated and lived in it with his family. Since 2004, the house has undergone a series of restoration works to acquire its current well-preserved appearance. It consists of a few buildings arranged in a square layout, providing valuable insights into the architectural style of the country homes of aristocrats of the late Joseon period.

문화유산 상세정보

제 0123 호
기념 123, 육영수 생가지, 陸英修 生家址
유적건조물 > 인물사건 > 인물기념 > 탄생지
주생활 > 건축물 > 일반건축
조선시대
옥천군
2002-04-26
-
교육ㆍ사회사업에 관한 유적>생가
-
목재
팔작지붕, 맞배지붕
가구식구조, 목구조, 공간배치(사랑채, 중문채, 위채, 정자, 사당, 안채, 뒤주, 아래채, 연지방아, 아래대문채, 곳간채, 창고)
-
일원
9,133.4
대표 소재지 공개
29027충청북도 옥천군 옥천읍 향수길 119
충청북도 옥천군 옥천읍 교동리 313
대표 보관장소 공개
29027충청북도 옥천군 옥천읍 향수길 119(교동리)
충청북도 옥천군 옥천읍 교동리 313

소유 관리 점유 정보

참고문헌

청주대학교박물관, 2002, 『육영수 여사 생가지 지표조사 보고서』. [아카이브 > 학술자료 수록]

예그린건축사사무소, 2003, 『육영수 여사 생가복원 종합정비계획』. [아카이브 > 학술자료 수록]

충청대박물관, 2005, 『옥천 육영수 생가지 1차 발굴조사 보고서』. [아카이브 > 학술자료 수록]

중원문화재연구원, 2008, 『옥천 고육영수여사 생가지 시발굴조사 보고서』. [아카이브 > 학술자료 수록]

우신기업, 2010, 『육영수생가 복원공사 보고서』. [아카이브 > 학술자료 수록]

충청산업보건연구원, 2013, 『육영수여사생가 건축물석면조사 결과서』. [아카이브 > 학술자료 수록]

충북문화유산지킴이, 2014, 『충북문화재 모니터링 점검보고서 下』. [아카이브 > 학술자료 수록]

충북문화재돌봄사업단, 2015, 『충청북도 문화재돌봄사업 결과보고서Ⅰ』. [아카이브 > 학술자료 수록]

충북문화재돌봄사업단, 2017, 『충청북도 문화재 돌봄사업 결과보고서』. [아카이브 > 학술자료 수록]

이미지

음원

  • 자료가 없습니다.

문서

  • 자료가 없습니다.

도면

3D

  • 자료가 없습니다.