본문 바로가기 대메뉴 바로가기

충북 아키비움 근원을 기록하다

아키비움 검색
괴산 청안향교
시도지정 > 충북 유형문화유산 괴산 청안향교
  • 한자명槐山 淸安鄕校
  • 영문명Cheonganhyanggyo Local Confucian School, Goesan
  • 지정일/등록일1977-12-06
  • 관할시군괴산군
  • 이칭/별칭유형 40

문화재 설명정보

청안향교는 독립 군현이었던 청안현에 있던 향교이다.
청안향교의 정확한 건축 시기는 알 수 없으나, 『신증동국여지승람』 제16권 충청도 청안현조에 “청안현 동쪽 2리에 있다.”라고 기록되어 있어, 조선 초기 현재 위치에 창건된 것으로 추정된다.
명륜당의 편액이 1733년(영조 9)에 쓰인 것으로 알려지고 있어 지금의 건물들은 1733년 이후에 보수된 것이 전해지는 것으로 생각된다. 1979년부터 1981년까지 대성전, 내삼문, 명륜당을 해체 보수 하였으며, 외삼문을 새로 지어 현재에 이르고 있다.
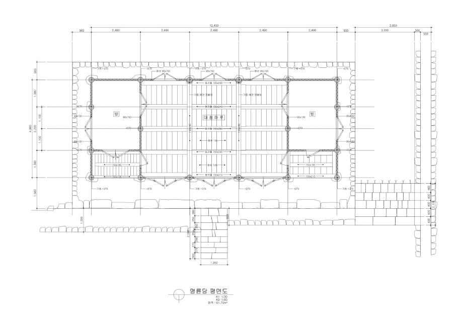
청안향교는 경사지에 남향하여 위치하고 있다. 현재 일곽은 대성전과 내삼문, 명륜당, 외삼문, 교직사, 홍살문, 하마비 등으로 구성되어 있다. 강학공간(講學空間)인 명륜당이 앞에 배치되고 제향공간(祭享空間)인 대성전이 뒤에 배치되는 ‘전학후묘(前學後廟)’식 배치로 되어 있다. 대성전은 정면 3칸, 측면 2칸의 겹처마, 맞배지붕 건물이다. 명륜당은 정면 5칸, 측면 3칸의 팔작지붕 건물이다. 명륜당 가운데 3칸은 대청마루, 양쪽 각 한 칸씩은 온돌방으로 하였다. 명륜당 내에는 편액과 향교 내력을 알 수 있는 중수기가 걸려있다. 내삼문은 정면 5칸, 측면 1칸으로 충북지역의 다른 향교들이 일반적으로 정면 3칸인데 반해 큰 규모이다. 중앙 3칸에는 대문이 달려 있다. 어칸문에는 상부 문인방 위에 홍살과 태극 삼지창이 구성되어 있는데 이러한 예도 흔히 볼 수 없는 장식으로 특이하다. 좌우 측면 칸은 전면을 벽체로 막아서 헛간으로 구성하고 있다. 외삼문은 정면 3칸, 측면 1칸의 겹처마 맞배집으로 평삼문이다. 전체적으로 담장을 둘렀다.
청안향교는 충청북도 내에서 가장 오래된 향교 중 하나이며 규모나 양식 등에서도 우수한 건축기법을 간직하고 있다.
Cheonganhyanggyo Local Confucian School consists of Daeseongjeon Shrine, inner and outer entrances composed of a set of three gates, Myeongnyundang Lecture Hall, an administration building, a hongsalmun (a red structure marking the entrance to shrines, tombs, and academies), and a hamabi (a stone marker informing visitors that they should dismount from their horse in deference to Confucius). Compared to the 3-kan* inner entrance of other hyanggyo in the province, the inner entrance (composed of a set of three gates) of this school is somewhat oversized (5 kan by 1 kan). Its middle gate features red pointed spikes and taegeuk pattern decorations of a kind rarely seen in other inner gates. The outer entrance (composed of a set of three gates of equal height) measures 3 kan by 1 kan and has a gable roof with double-layer eaves. Although the precise date of its construction is unknown, it is thought to be one of the oldest Confucian schools in the province. Its size and architectural style set an example for others to follow.
(*kan: a unit of measurement referring to the distance between two columns)
清安郷校は、独立郡県の清安県にあった郷校である。現在、大成殿と内三門、明倫堂、外三門、校直舎、紅箭門、下馬碑などで構成されている。忠北地域の他の郷校では一般的に正面3間であるのに対して、清安郷校の内三門は、正面5間、側面1間となっており、非常に規模が大きい。御間門には、上部の門引枋(まぐさ)の上に紅箭と太極三枝槍が配されているが、このような装飾は珍しく、独特である。外三門は、正面3間、側面1間で、軒を二軒とする、切妻造の建物で、平三門である。忠清北道で最も古い郷校の一つで、規模や様式などにおいて優れた建築技法がうかがえる。

문화유산 상세정보

제 0040 호
유형 40
유적건조물 > 교육문화 > 교육기관 > 향교
주생활 > 건축물 > 향교건축
조선시대
괴산군
1977-12-06
-
건조물>목조건축물류/향교
-
목재
맞배지붕, 팔작지붕
전학후묘(前學後廟) 배치, 공간구조(대성전, 명륜당)
대성전(3X2), 명륜당(5X3)
2동
3,460.5
대표 소재지 공개
28050충청북도 괴산군 청안면 청안읍내로5길 33-14
충청북도 괴산군 청안면 읍내리 278
대표 보관장소 공개
28050충청북도 괴산군 청안면 청안읍내로5길 33-14(읍내리))
충청북도 괴산군 청안면 읍내리 278

소유 관리 점유 정보

참고문헌


동영상

  • 자료가 없습니다.

음원

  • 자료가 없습니다.

문서

  • 자료가 없습니다.

3D

  • 자료가 없습니다.