본문 바로가기 대메뉴 바로가기

충북 아키비움 근원을 기록하다

아키비움 검색
보은 최감찰댁
국가지정 > 국가민속문화유산 보은 최감찰댁
  • 한자명報恩 崔監察宅
  • 영문명Choegamchaldaek House in Boeun
  • 지정일/등록일1984-01-10
  • 관할시군보은군
  • 이칭/별칭국민 139, 보은 최태하 가옥, 報恩 崔台夏 家屋

문화재 설명정보

보은 최감찰댁은 조선후기에 지어진 가옥으로 보은 삼승면 선곡리의 화순최씨 집성촌에 위치한다.
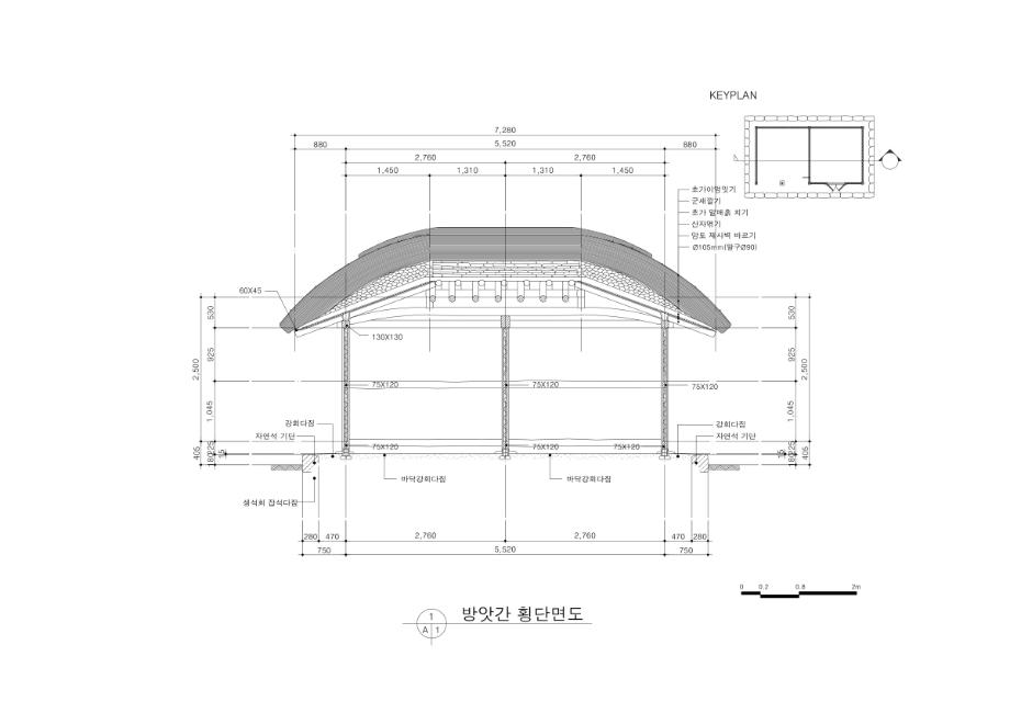
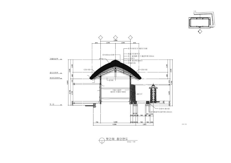
최감찰댁은 현재 안채와 사랑채, 중문채, 광채를 비롯하여 헛간채와 뒤주 등의 부속채로 구성되어 있다. 사랑채는 기와집이지만 안채와 나머지 건물은 초가집으로 된 특이한 구성형식을 띠고 있다.
이 가옥의 건립시기는 안채 대청의 종도리를 받치고 있는 장혀에 “숭정기원후오임진(崇禎紀元後五壬辰)”이라는 상량문이 남아 있어 1892년(고종 29)이라는 정확한 건축연대를 알 수 있다. 사랑채도 안채와 같은 시기에 건립된 것으로 추정된다. 중문채와 헛간채, 뒤주 등의 부속채들은 20세기 초에 건립된 이후에 많은 증·개축 과정이 있었던 것으로 보인다.
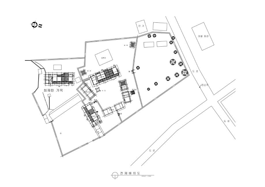
가옥의 배치는 앞쪽에 一자형 사랑채, 뒤쪽에 사랑채와 직각축으로 一자형의 안채를 두었는데 안채 앞쪽에 一자형 중문채를 두어 전체적으로 ㄷ자 모양의 배치를 보여주고 있다. 일반적으로 반가에서는 사랑채를 안채의 전면에 배치하여 인접시키는데, 이 가옥은 남측에 직각축으로 독립된 별채와 같이 배치하였다. 따라서 안채의 향도 동북향을 하고 있어 흔하지 않은 사례이다.
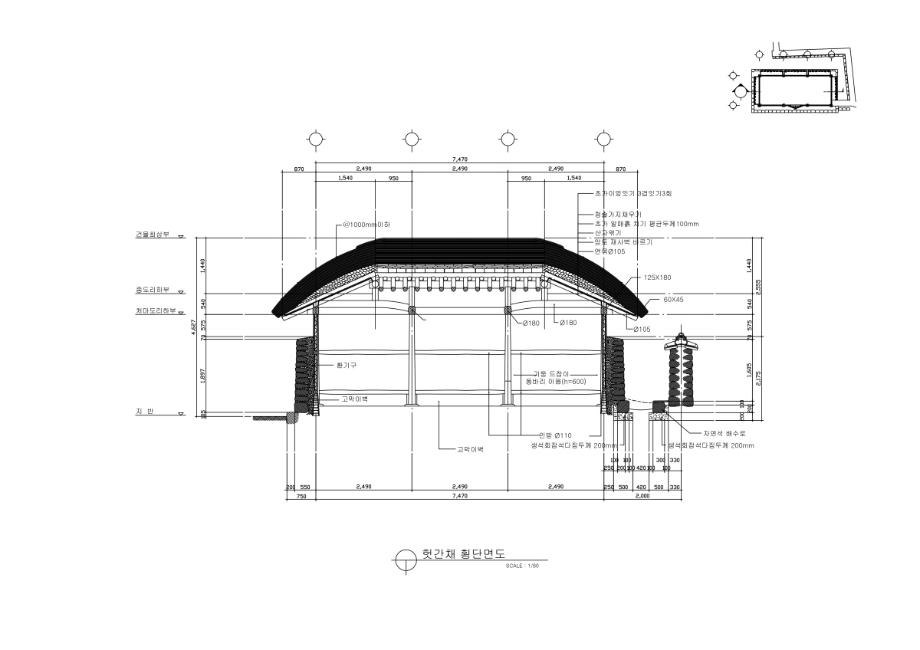
안마당 남쪽에는 광채가 사랑채 옆으로 약간 비스듬히 배치되어 있고 북쪽에는 중문채 곁으로 헛간채와 측간을 두고 있다. 안채의 뒤뜰에는 2동의 뒤주와 장독대를 두었다. 현재 중문채 앞으로 넓은 빈터가 있는데, 1970연대까지만 해도 여러채의 가랍집(외거노비들이 살던 초가집)이 놓여있었다고 한다.
솟을대문 없이 사랑채 동쪽에 위치한 철대문을 들어서면 우측으로 3칸의 바깥대문채가 있고 그 옆으로 나란히 사랑채가 동남향하여 배치되어 있다. 사랑마당에는 커다란 회나무와 연산홍 등이 전통적인 정원의 모습을 잘 보여주고 있다.
안마당으로의 진입은 사랑채 동쪽의 바깥대문채와 안채 북쪽의 담장 중간에 설치된 후문을 통해서 직접 들어가는 두 가지 방법을 쓰고 있다. 바깥대문채를 들어서면 중문채를 통하거나 사랑채 후면인 서쪽으로 안채와 사랑채를 막아주는 담장을 두어 작은 샛마당이 만들어지게 되는데, 이 샛마당을 지나 작은 협문을 통해 들어갈 수 있다.
이와 같이 이 가옥은 바깥마당에서 사랑마당으로, 바깥 대문을 거쳐 보다 작은 가운데 마당과 샛마당으로, 중문을 지나 커다란 안마당으로 각각 동선을 ㄱ자로 꺾으면서 집안으로 진입하게 되는데, 이는 우리나라 양반가옥의 전형적인 공간구성 방법이라고 할 수 있다.
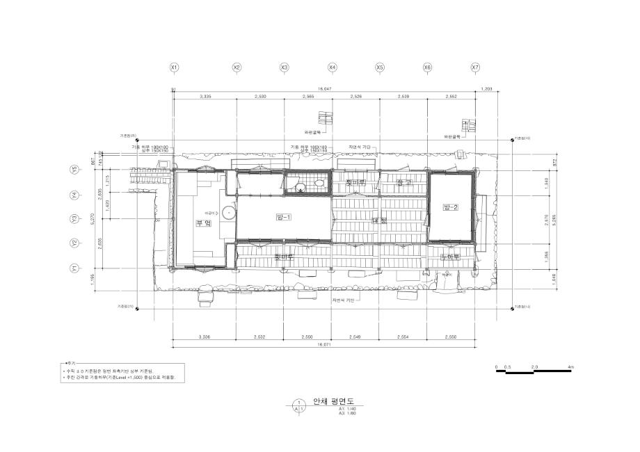
안채는 정면 6칸, 측면은 앞뒤로 반 칸씩의 퇴칸을 둔 우진각 초가집이다. 평면은 남쪽부터 부엌 1칸, 안방 2칸, 대청 2칸, 건넌방 1칸으로 구성하였다. 안방 뒤의 퇴에는 골방을 두었으며, 대청 뒤쪽의 퇴는 벽으로 막아 우측칸에 정실(淨室)을 만들어 조상의 위패를 모시게 하였다.
안채는 원래 초가로 지었으나 건물의 전체적인 목구조기법이 다른 반가의 기와집에 비해 손색이 없고, 안방문의 하단에 머름을 설치하는 등 초가에서는 보기 드물게 장식적인 요소가 많이 가미된 것으로 보아 당초에는 기와집으로 계획하였으나 건립과정에서 어떠한 사유에 의해 초가로 변경된 것으로 추정된다. 지붕가구는 2고주5량가로 짜여 있다.
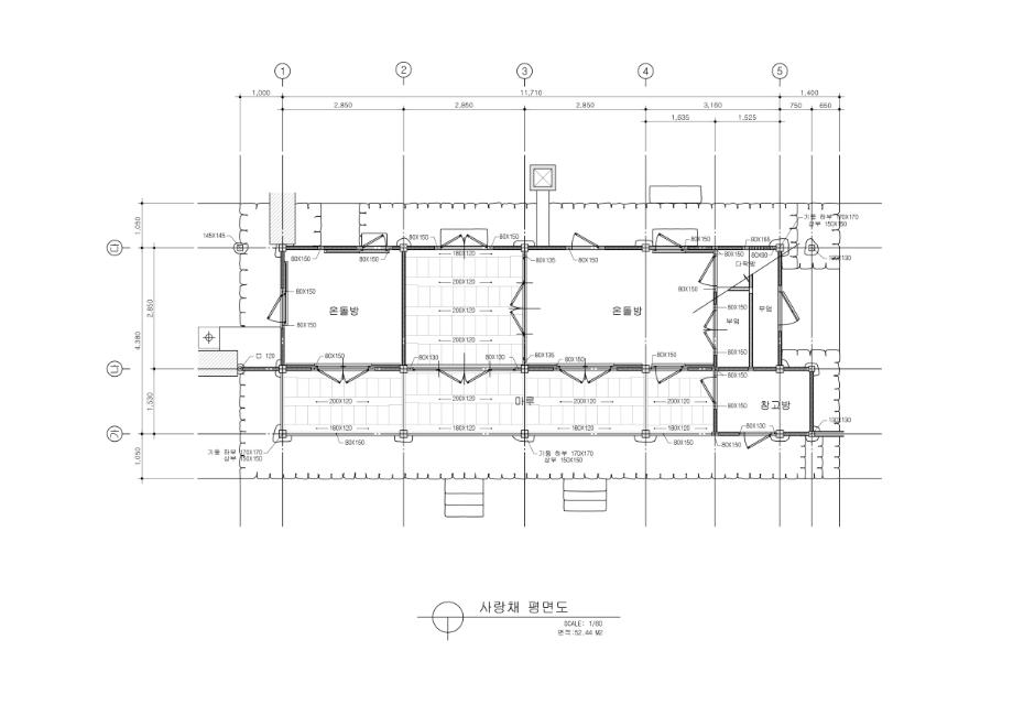
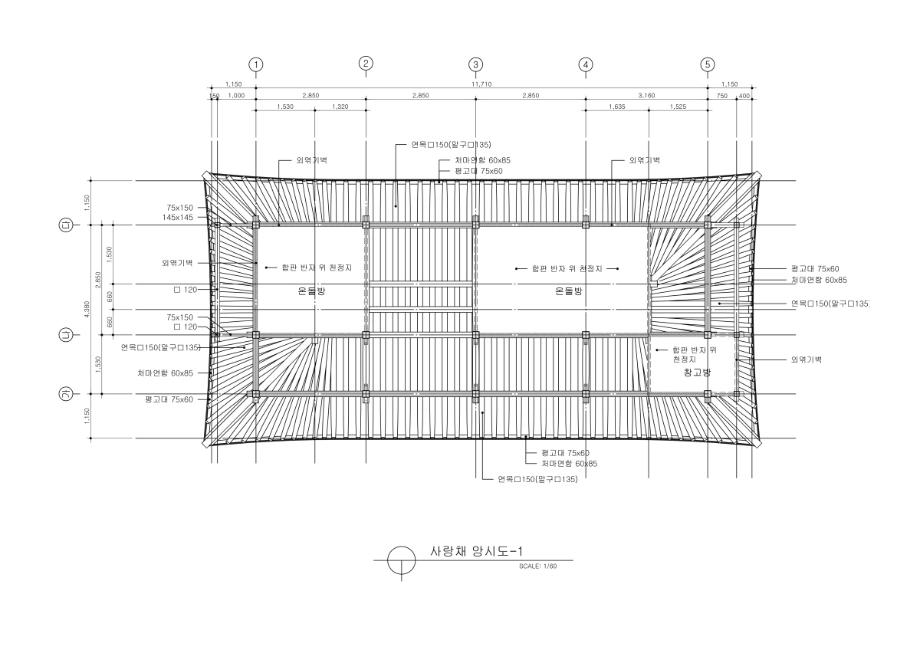
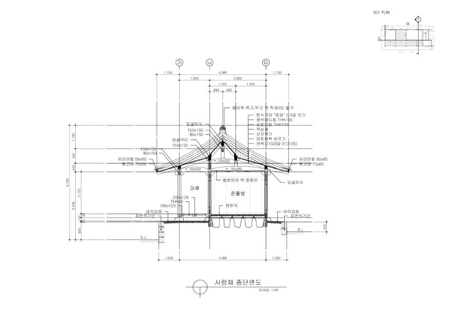
사랑채는 정면 4칸, 측면 2칸의 팔작지붕이다. 평면은 좌우측의 퇴칸에서 중앙칸들 보다 주칸을 넓게 구성하였다. 우측면 퇴칸은 간주를 세워 칸을 나누고 다시 처마 밑으로 헛기둥을 세워서 벽장을 달아 공간을 확장시켜 놓았다. 전면 퇴칸은 마루를 깔아 각 실들의 통로로 연결하였다. 우측에서 두 번째 칸에는 마루방을 두어 대청마루로 만들고 좌우측에 방을 연결하였다. 건물구조는 자연석 기단 위에 덤벙주초를 놓고 그 위에 네모기둥을 세웠다. 지붕가구는 1고주5량가로 짜여 있다.
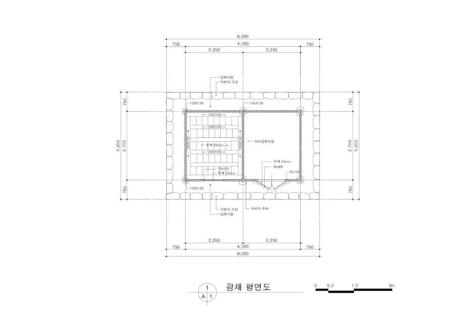
광채는 정면 3칸, 측면 1칸으로 되어 있으나, 내부는 하나의 실로 되어있다. 정면을 제외한 세 벽면에는 화방벽이 설치되어 있다.
중문채는 정면 5칸, 측면 1칸으로 가운데에 대문을 두고 대문 좌우에는 방과 부엌, 광을 두었다. 문간을 중심으로 남측에 2칸의 광을, 북측으로는 방과 부엌을 각각 배치하였다.
최감찰댁은 과거 양반주택이 고수해 왔던 유교적 규범에서 벗어나 생활의 편의를 도모하면서도 부를 과시했던 당시의 시대적 경향을 보여주고 있다.
Built during the late Joseon period (1392-1910), the historic Choegamchaldaek House is located in the village of the Hwasun Choe clan in Seongok-ri, Samseung-myeon, Boeun. The house consists of an anchae (inner house), a sarangchae (guesthouse), a jungmunchae (mid-gate house), a gwangchae (storehouse), and annexes that were used as a shed and a granary. All of the structures are thatch-roofed except for the guesthouse, which has a ceramic tiled roof. The house reflects the tendency of the period in which practical purposes were regarded as more important than the traditional Confucian values that had long been maintained by the houses of the upper class of Joseon.
報恩崔(チェ)監察宅は、報恩郡三升面仙谷里の和順崔(チェ)氏集姓村にある、朝鮮後期に建てられた家屋である。
崔(チェ)監察宅は、アンチェ(母屋)、サランチェ(客間)、チュンムンチェ(中門の門屋)、クァンチェ(倉庫)のほか、ホッカンチェ(納屋)や穀物小屋などの付属建物で構成されている。サランチェは瓦屋、アンチェや他の建物は草屋という、独特の構成となっている。崔(チェ)監察宅は、かつての両班住宅において重視されていた儒教的規範は疎かにされており、生活のしやすさにこだわりつつ、富を誇示するという、当時の時代的傾向をよく示している。

문화유산 상세정보

제 0139 호
국민 139, 보은 최태하 가옥, 報恩 崔台夏 家屋
유적건조물 > 주거생활 > 주거건축 > 가옥
주생활 > 건축물 > 일반건축
조선시대
보은군
1984-01-10
-
의·식·주에 관한 것>주거
-
목재
팔작지붕, 초가지붕
가구식구조, 목구조, 공간구조(안채, 사랑채, 중문채, 광채, 헛간채, 뒤주)
사랑채(4X2), 광채(3X1), 중문채(5X1)
일곽
5,178.0
대표 소재지 공개
28923충청북도 보은군 삼승면 거현송죽로 301-7
충청북도 보은군 삼승면 선곡리 281
대표 보관장소 공개
28923충청북도 보은군 삼승면 거현송죽로 301-7(선곡리)
충청북도 보은군 삼승면 선곡리 281

소유 관리 점유 정보

참고문헌

호연건축문화유산연구원, 2015, 『중요민속문화재 지정조사 보고서』. [아카이브 > 학술자료 수록]

충북문화재돌봄사업단, 2017, 『충청북도 문화재 돌봄사업 결과보고서』. [아카이브 > 학술자료 수록]

충북문화재돌봄사업단, 2018, 『충청북도 문화재 돌봄사업 활동보고서』. [아카이브 > 학술자료 수록]

충북문화재돌봄사업단, 2019, 『충청북도 문화재 돌봄사업 활동보고서』. [아카이브 > 학술자료 수록]

충북문화재돌봄사업단, 2020, 『충청북도 문화재 돌봄사업 활동보고서』. [아카이브 > 학술자료 수록]

현석건축사사무소, 2020, 『보은 최감찰댁 정밀실측조사보고서』. [아카이브 > 학술자료 수록]

한국건축문화정책연구원, 2022, 『국가민속문화재(건조물) 정기조사 연구보고서 Ⅰ』. [아카이브 > 학술자료 수록]

이미지

음원

  • 자료가 없습니다.

문서

  • 자료가 없습니다.

도면

3D

  • 자료가 없습니다.